Description
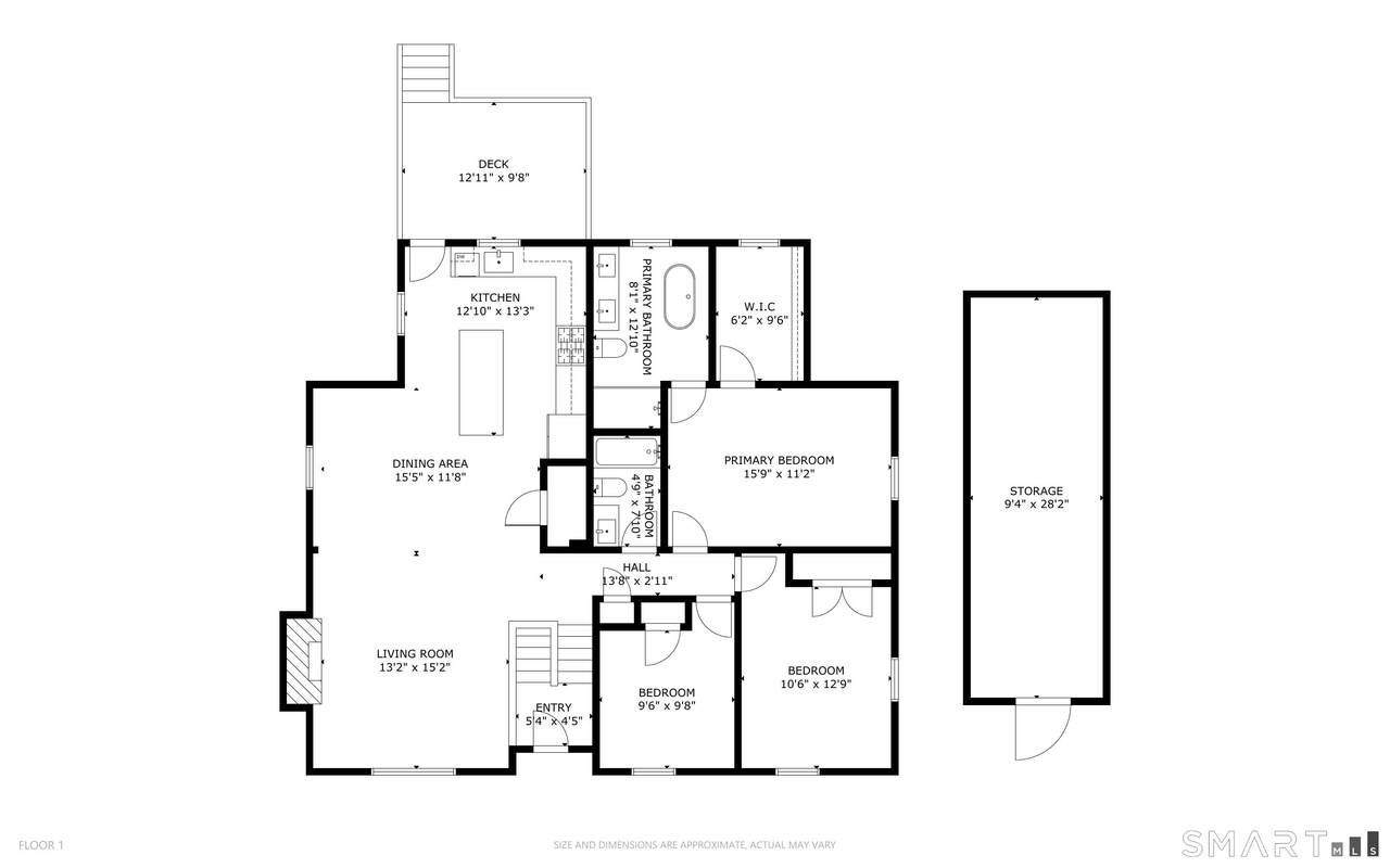
Anonymous with luxury construction, builder Elivanio Reis is well known for his attention paid to architectural details and use of high end quality materials with no expense spared both in the interior & exterior of all his projects. This home featuring 11 Rooms, 4 Bedrooms, 3 Full Bathrooms, Possible in-law in the lower level, Primary bedroom suite totaling 479 square feet, The Kitchen, Eat in Area & Living room is 1 large room and is a massive 610 square feet and the home has a workshop / storage area giving an extra 320 square feet. All the schools are close by with Second hill school ( PK - 6 ) 1.2 miles : Harry Flood middle school 3.9 miles : Bunnell high school 1.9 miles. You are within a few minutes drive to everything including 0.5 miles to all major shopping : 0.75 miles to the park : 1.4 miles to the Merritt Parkway : 1.2 miles to Route 8 : 1.1 miles to Stratford train station : 2 miles to I-95 north & south ramps : 1.8 miles to Short Beach & 1.7 miles to Yale Bridgeport hospital. Builder Elivanio Reis is well known for his attention paid to architectural details and use of high end quality materials with no expense spared on the interior & exterior of all his projects in Fairfield & New Haven County. Primary Bedroom ( 479 sq ft ) - 22.3 x 21.5. Kitchen, Eat in Area, living room ( 610 sq ft ) - 37.2 x 16.4. Storage area ( 320 sq ft ) - 30.0 x 10.6. Bedroom 3 ( 163 sq ft ) - 15.4 x 10.6. Bedroom 2 ( 125 sq ft ) - 12.4 x 10.1. Living Room ( 204 sq ft ) - 15.6 x 13.10. Eat-In Area ( 230 sq ft ) - 16.4 x 14.0. Kitchen ( 135 sq ft ) - 14.4 x 9.4. Hall Bath ( 35 sq ft ) - 8.4 x 4.11. Pantry ( 21 sq ft ) - 5.9 x 3.5. Foyer ( 53 sq ft ) - 9.0 x 5.9. Family Room ( 191 sq ft ) - 14.11 x 13.5. Bedroom ( 152 sq ft ) - 13.6 x 11.2. Office ( 72 sq ft ) - 9.0 x 8.0. Mudroom ( 79 sq ft ) - 14.4 x 5.5. Full Bath ( 40 sq ft ) - 8.5 x 4.7. Closet ( 8 sq ft ) - 3.0 x 2.5. Exterior / Additional Spaces. Deck ( 139 sq ft ) - 13.8 x 10.1. Garage ( 300 sq ft ) - 25.0 x 12.0
-
4BEDS
-
0.26ACRES
-
3BATHS
-
01/2 BATHS
-
1,164SQFT
-
$661$/SQFT
School Information
Description
Anonymous with luxury construction, builder Elivanio Reis is well known for his attention paid to architectural details and use of high end quality materials with no expense spared both in the interior & exterior of all his projects. This home featuring 11 Rooms, 4 Bedrooms, 3 Full Bathrooms, Possible in-law in the lower level, Primary bedroom suite totaling 479 square feet, The Kitchen, Eat in Area & Living room is 1 large room and is a massive 610 square feet and the home has a workshop / storage area giving an extra 320 square feet. All the schools are close by with Second hill school ( PK - 6 ) 1.2 miles : Harry Flood middle school 3.9 miles : Bunnell high school 1.9 miles. You are within a few minutes drive to everything including 0.5 miles to all major shopping : 0.75 miles to the park : 1.4 miles to the Merritt Parkway : 1.2 miles to Route 8 : 1.1 miles to Stratford train station : 2 miles to I-95 north & south ramps : 1.8 miles to Short Beach & 1.7 miles to Yale Bridgeport hospital. Builder Elivanio Reis is well known for his attention paid to architectural details and use of high end quality materials with no expense spared on the interior & exterior of all his projects in Fairfield & New Haven County. Primary Bedroom ( 479 sq ft ) - 22.3 x 21.5. Kitchen, Eat in Area, living room ( 610 sq ft ) - 37.2 x 16.4. Storage area ( 320 sq ft ) - 30.0 x 10.6. Bedroom 3 ( 163 sq ft ) - 15.4 x 10.6. Bedroom 2 ( 125 sq ft ) - 12.4 x 10.1. Living Room ( 204 sq ft ) - 15.6 x 13.10. Eat-In Area ( 230 sq ft ) - 16.4 x 14.0. Kitchen ( 135 sq ft ) - 14.4 x 9.4. Hall Bath ( 35 sq ft ) - 8.4 x 4.11. Pantry ( 21 sq ft ) - 5.9 x 3.5. Foyer ( 53 sq ft ) - 9.0 x 5.9. Family Room ( 191 sq ft ) - 14.11 x 13.5. Bedroom ( 152 sq ft ) - 13.6 x 11.2. Office ( 72 sq ft ) - 9.0 x 8.0. Mudroom ( 79 sq ft ) - 14.4 x 5.5. Full Bath ( 40 sq ft ) - 8.5 x 4.7. Closet ( 8 sq ft ) - 3.0 x 2.5. Exterior / Additional Spaces. Deck ( 139 sq ft ) - 13.8 x 10.1. Garage ( 300 sq ft ) - 25.0 x 12.0
The data relating to real estate for sale on this website appears in part through the SMARTMLS Internet Data Exchange program, a voluntary cooperative exchange of property listing data between licensed real estate brokerage firms, and is provided by SMARTMLS through a licensing agreement. Listing information is from various brokers who participate in the SMARTMLS IDX program and not all listings may be visible on the site. The property information being provided on or through the website is for the personal, non-commercial use of consumers and such information may not be used for any purpose other than to identify prospective properties consumers may be interested in purchasing. Some properties which appear for sale on the website may no longer be available because they are for instance, under contract, sold or are no longer being offered for sale. Property information displayed is deemed reliable but is not guaranteed. Copyright 2026 SmartMLS, Inc. Data last updated: 2026-03-13T07:10:48.573.
